- Päämestarinkatu 2
- Kesämäki, Kaarina
- 4h + k + kph + s + 2wc + th + vh + at + varastotilaa
Päämestarinkatu 2
Kesämäki, Kaarina
4h + k + kph + s + 2wc + th + vh + at + varastotilaa
Jaa ystävälle
Tilava omakotitalo hyvällä paikalla!
Hienolla paikalla 1980-luvun omakotitalo!
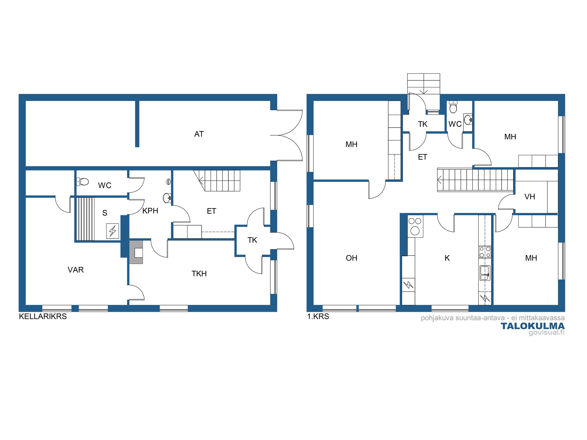
Talossa on kaksi kerrosta joista molemmista on kulku pihalle. Asuinkerroksesta löytyy avaran olohuoneen lisäksi keittiö, kolme makuuhuonetta, erillinen wc sekä vaatehuone. Alakerrassa on takkahuone, kylpyhuone ja sauna ja wc sekä kodinhoito- ja varastotilaa. Talon yhteydessä on lisäksi lämmin autotalli jonka perällä on lämmin toimisto- / varastohuone.
Talossa on ilmalämmitys. Katolle on laitettu aurinkopaneeleita. Lisäksi alakerrasta löytyy avotakka takkasydämellä. Taloa ei ole viime aikoina remontoitu ja se kaipaakin jo remonttia tulevan omistajan mieltymysten ja tarpeiden mukaan.
Talo sijaitsee omalla 1088m2 tontilla. Tontti on melko tasainen ja rajoittuu takaosaltaan metsään. Koulut ja päiväkodit löytyvät lähistöltä kuten Kaarinan muutkin palvelut.
Ole yhteydessä ja käydään katsomassa taloa!
Järvinen Anssi
Kiinteistönvälittäjä, LKV, LVV
Puh 0400 718 602
anssi.jarvinen@talokulma.fi
Talokulma
LKV Järvinen Oy
Logomo Byrå
Junakatu 9
20100 Turku
www.talokulma.fi
Haluatko ilmaisen arvion ja edullisen välityspalkkiotarjouksen?
Soita tai lähetä minulle sähköpostia!
Sijainti:
Päämestarinkatu 2
Postinumero:
20780
Kerros:
1/2
Pinta-ala:
169 m²
Kokonaispinta-ala:
169 m²
Lisätietoja pinta-alasta:
Pinta-aloja ei ole tarkastusmitattu.
Asunnon kunto:
Tyydyttävä
Listauksen tyyppi:
Omakotitalo
Rakennusvaihe:
Valmis
Rakennusvuosi:
1980
Huoneluku:
4
Velaton hinta:
199 000 €
Keittiön kuvaus:
Tilava keittiö jossa mukavasti kaappitilaa. Pöytä mahtuu keittiöön helposti.
Keittiön varusteet:
Jääkaappipakastin, erillisuuni, liesituuletin, astianpesukone ja leivinuuni
Keittiön lattiamateriaali:
Laminaatti
Keittiön seinämateriaali:
Tapetti, maali ja laatta
Olohuoneen kuvaus:
Iso ja avara olohuone.
Olohuoneen seinämateriaali:
Tapetti
Olohuoneen lattiamateriaali:
Parketti
Makuuhuoneen kuvaus:
Asuinkerroksessa kolme makuuhuonetta. Alakerrassa myös tilaa jota voi halutessaan muokata.
Kylpyhuone:
Alakerrassa tilava kylpyhuone jonka yhteydessä sauna ja erillinen wc. Laatoitettu kylpyhuone joka kaipaa jo remonttia.
Kylpyhuoneen seinämateriaali:
Kaakeli
Kylpyhuoneen lattiamateriaali:
Laatta
Kylpyhuoneen varusteet:
WC-istuin, suihku ja pesuallas
WC:
Yläkerrassa erillinen wc. WC myös alakerrassa kylpyhuoneen yhteydessä.
Kodinhoitohuoneen kuvaus:
Tilava kodinhoitotila alakerrassa.
Kodinhoitohuoneen lattiamateriaali:
Laatta
Kodinhoitohuoneen varusteet:
Pesukoneliitäntä
Sauna:
Kyllä
Saunan kuvaus:
Sauna kylpyhuoneen yhteydessä.
Takka:
Avotakka jossa takkasydän.
Parveke:
Ei parveketta
Muut tilat:
Yläkerrassa eteinen, keittiö, olohuone, kolme makuuhuonetta ja vaatehuone sekä wc. Alakerrassa kylpyhuone ja sauna sekä wc, takkahuone, kodinhoitohuone, varasto ja kulku ulos. Lisäksi talon yhteydessä lämmin autotalli sekä autotallin perällä erillinen lämmin huone.
Tie perille:
Kyllä
Kiinteistön tyyppi:
Tontti
Kiinteistötunnus:
202-446-3-268
Vesijohto:
Urban_water
Viemäri:
Municipal_sewer
Kaavatilanne:
Asemakaava
Kaavoitustiedot:
Kaarinan kaupunki puh 02 588 4000
Tontin pinta-ala:
1088 m²
Tontin omistus:
Oma
Tontin tyyppi:
Tasamaatontti
Rakennusmateriaali:
Tiiliverhoilu
Lämmitysjärjestelmä:
Aurinkolämpö ja ilmalämmitys
Ilmanvaihto:
Ventilation_unit
Kattotyyppi:
Harjakatto
Katemateriaali:
Tiili
Energiatodistus:
Ei lain edellyttämää energiatodistusta
Liikenneyhteydet:
Sujuvat yhteydet omalla autolla, bussipysäkki lähellä ja hyvät pyöräilytiet
Lisätietoja liikenneyhteyksistä:
www.foli.fi
Palvelut:
Kaarinan keskustan ja Krossin alueen palvelut lähellä.
Koulut:
Alueella kouluja ja päiväkoteja.
Asbestikartoitus:
Ei































